11025 Granbury

Temple, TX 76502

11025 Granbury

Temple, TX 76502

$529,900

10
  • Lakewood Ranch Ph Iv
  • MLS: #608702
1 month, 26 days, 19 hours, 3 minutes on market
4 2 2601
Beds Baths Sq. Ft.
StatusActive
Year Built1997
CountyBell
Flooring
Lot Size1
ParkingAttached, Garage, GarageDoorOpener, GarageFacesSide
Total Stories
CoolingCentralAir, Electric, OneUnit
School District Belton ISD
Schools
FireplaceFamilyRoom, WoodBurning
Property Type SingleFamilyResidence

Property Details

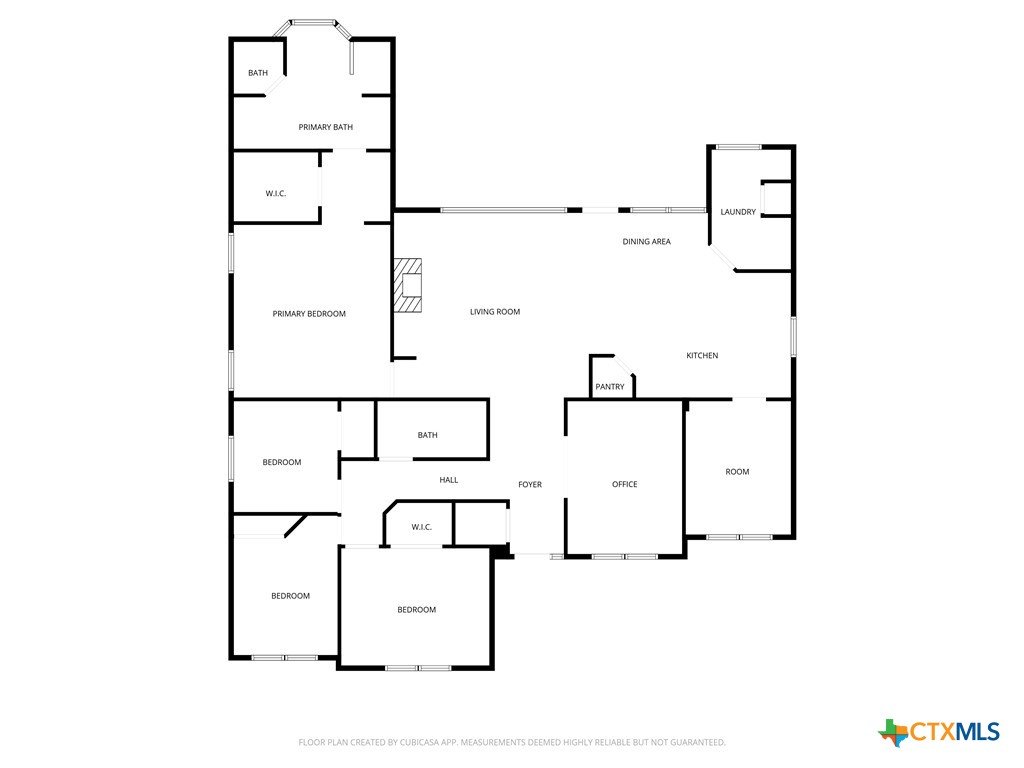
Located in the highly sought-after Lakewood Ranch community within Belton ISD, 11025 Granbury Cove offers a rare opportunity to own a move-in ready 4-bedroom home on a full 1-acre corner lot in Temple, TX. Combining space, privacy, and convenience, this property delivers the features today’s buyers are actively searching for in the Central Texas real estate market. Designed with both comfort and functionality in mind, the open-concept floor plan features soaring ceilings, abundant natural light, and seamless flow between the living, dining, and kitchen areas—ideal for entertaining or everyday living. The kitchen is beautifully appointed with granite countertops, center island, walk-in pantry, hidden pantry storage, and ample cabinetry for added organization and style. The split-bedroom layout enhances privacy, while the oversized primary suite creates a relaxing retreat complete with dual vanities, garden tub, separate shower, and spacious walk-in closets. A dedicated home office or flex space near the entry provides versatility for remote work, study, gym, or playroom needs. Step outside to enjoy the covered patio, fenced backyard, side-entry garage, and expansive acreage with room to add a future pool, workshop, outdoor kitchen, or additional recreation space. Properties with usable land, modern layouts, and Belton ISD schools are increasingly difficult to find at this price point. Residents enjoy access to community amenities including walking trails, playground, outdoor recreation areas, and neighborhood pool, all conveniently located near Lake Belton, Baylor Scott & White Medical Center, shopping, dining, and quick I-35 access for commuting to Austin, Georgetown, or Waco. If you’re searching for a home with acreage in Temple TX, corner lot property in Belton ISD, or a spacious Central Texas home with modern features and outdoor potential, 11025 Granbury Cove checks every box. Schedule your private showing today.




Courtesy of Exp Realty - Austin

This real estate information comes in part from the Internet Data Exchange/Broker Reciprocity Program . Information is deemed reliable but is not guaranteed.
© 2017 San Antonio Board of Realtors. All rights reserved.


,,