926 Childress

Temple, TX 76501

926 Childress

Temple, TX 76501

$270,990

10
  • County View
  • MLS: #602461
2 months, 1 day, 23 hours, 31 minutes on market
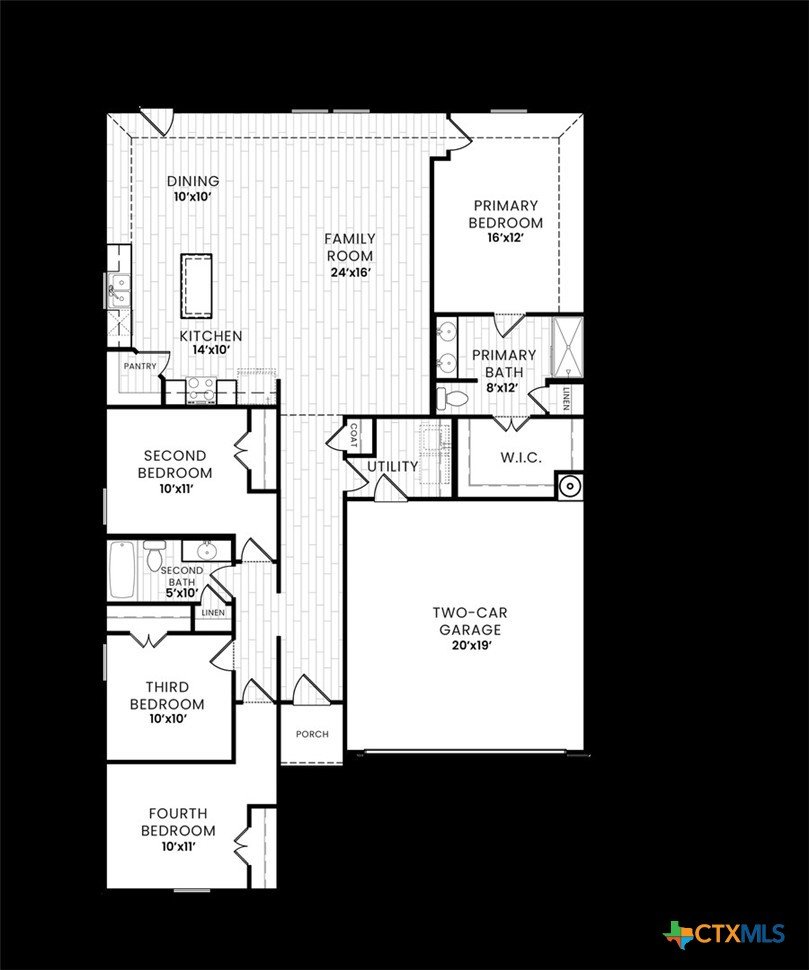
4 2 1763
Beds Baths Sq. Ft.
StatusActive
Year Built2024
CountyBell
Flooring
Lot Size0.25
ParkingAttached, DoorSingle, GarageFacesFront, Garage, GarageDoorOpener
Total Stories
CoolingCentralAir, Electric, OneUnit
School District Temple ISD
Schools Temple High School, Lamar Middle School, Garcia Elementary
FireplaceNone
Property Type SingleFamilyResidence

Property Details

MLS 602461 - Built by Dunhill Homes - Ready Now! ~ Discover modern living in this stunning single-family home located in the desirable County View subdivision. Built in 2024, this freshly constructed residence offers an impressive 1,763 square feet of thoughtfully designed space, featuring a total of four spacious bedrooms, providing flexibility for family living or guest accommodations. The home boasts two full bathrooms, ensuring convenience for all. The open layout includes one dining area and one inviting living area, perfect for entertaining or relaxing with loved ones. The contemporary kitchen and living spaces are enhanced by abundant natural light. Step outside to a private backyard, an ideal setting for outdoor gatherings or a peaceful retreat, complemented by security lighting for added peace of mind. Situated within the highly regarded Temple Independent School District, children can benefit from an excellent education at Garcia Elementary, Lamar Middle School, and Temple High School. With complete construction now finished, this property is ready for you to move in and make it your own. Enjoy the convenience of modern amenities and the comfort of a new home in a vibrant community. Don’t miss the opportunity to own this exceptional property.




Courtesy of Homesusa.com

This real estate information comes in part from the Internet Data Exchange/Broker Reciprocity Program . Information is deemed reliable but is not guaranteed.
© 2017 San Antonio Board of Realtors. All rights reserved.


,,