8110 Serro Medina

San Antonio, TX 78252
Off Market

8110 Serro Medina

San Antonio, TX 78252

Contact For Sold Price
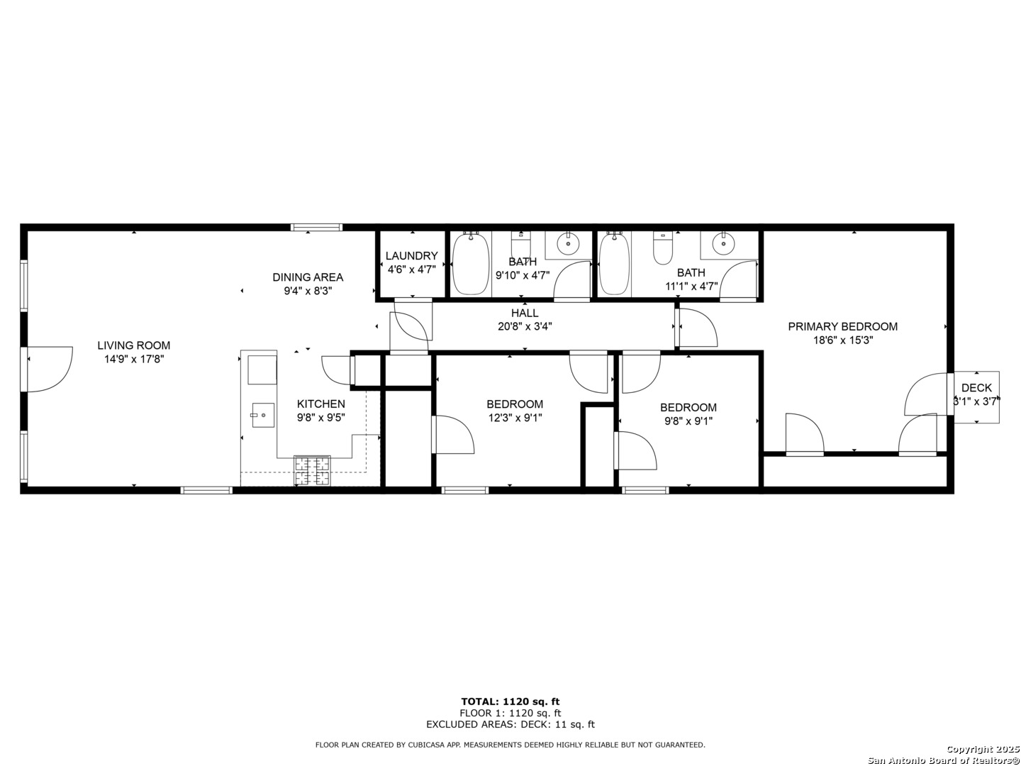
3 2 1235
Beds Baths Sq. Ft.
StatusOff Market
Year Built2021
CountyBexar
FlooringCarpeting, Laminate
Lot Size0.078
ParkingNone/Not Applicable
Total Stories1
CoolingOne Central
School District Southwest I.S.D.
Schools Southwest, Mc Nair, Southwest
FireplaceNot Applicable
Property Type Single Family Detached
8110 Serro Medina San Antonio TX 78252

Property Details

This charming one-story home offers a seamless blend of comfort and style. Step inside and be captivated by the expansive open-concept layout, where the spacious living room, dining area, and stunning kitchen flow effortlessly together, creating the perfect setting for entertaining and family gatherings. The kitchen is a true showstopper, boasting elegant quartz countertops, sleek stainless steel appliances, and gas cooking for the culinary enthusiast. Convenience is key with an inside laundry room designed to accommodate a stackable washer and dryer. Two generously sized secondary bedrooms provide ample closet space, while the primary bedroom offers a serene retreat with its impressive size, dual closets, and a private ensuite bathroom. The primary bathroom features a relaxing tub/shower combo and a vanity with abundant counter space. Outside, enjoy a large backyard offering endless possibilities for outdoor fun, complemented by the added privacy of having no rear neighbors. This home truly shows like brand new, presenting an incredible opportunity to own a beautifully maintained property in a desirable neighborhood. Just minutes from Lackland Air Force Base, Port of San Antonio, Sea World, Shopping, Restaurants and Grocery stores. Easy commute to Loop 1604, Hwy 90, and Loop 410.




Courtesy of Exp Realty

This real estate information comes in part from the Internet Data Exchange/Broker Reciprocity Program . Information is deemed reliable but is not guaranteed.
© 2017 San Antonio Board of Realtors. All rights reserved.


,,