722 Jennifer Way

New Braunfels, TX 78130

722 Jennifer Way

New Braunfels, TX 78130

$2,150

10
  • Spring Valley
  • MLS: #1938422
2 months, 23 days, 2 hours, 44 minutes on market
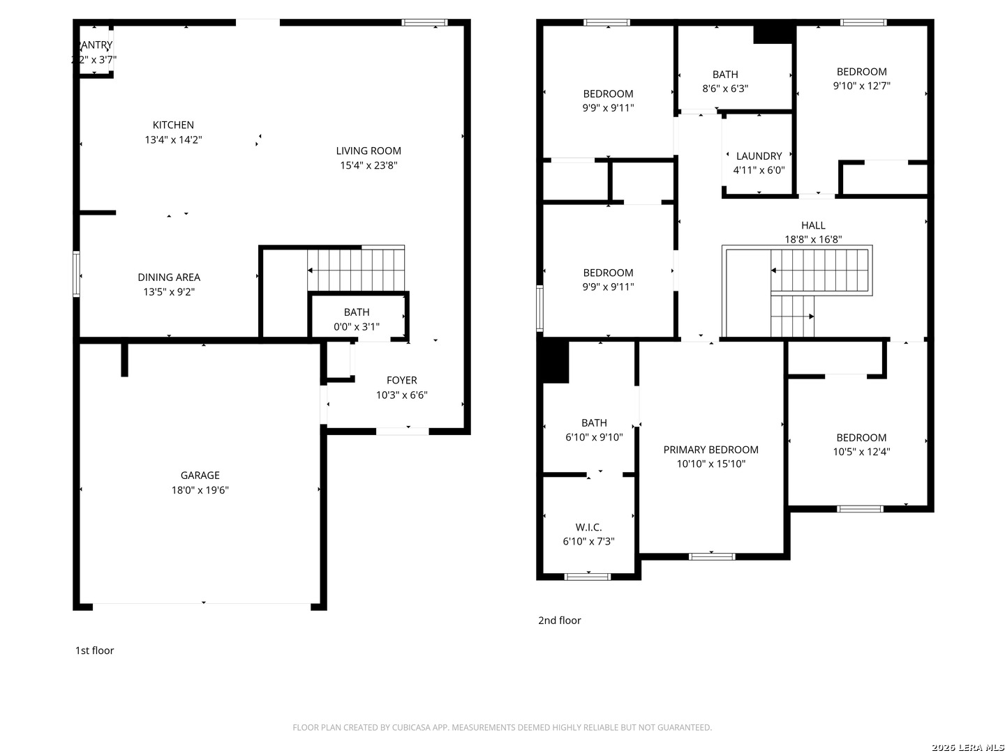
5 3 1892
Beds Baths Sq. Ft.
StatusActive
Year Built2025
CountyComal
Flooring
Lot Size
ParkingTwo Car Garage
Total Stories
CoolingOne Central
School District Comal
Schools Canyon, Canyon, Farias-spitzer
FireplaceNot Applicable
Property Type Single Family Detached
722 Jennifer Way New Braunfels TX 78130

Property Details

**Move-in Special 2 WEEKS FREE RENT** This rare 5-bedroom, 2.5-bath home offers nearly 1,900 square feet of flexible living space, making it perfect for larger households or shared living arrangements. The layout allows for multiple uses, including home offices or guest rooms, while maintaining comfortable shared spaces. Located in New Braunfels with easy access to major routes, this home offers both versatility and value.




Courtesy of Gsg Property Management

This real estate information comes in part from the Internet Data Exchange/Broker Reciprocity Program . Information is deemed reliable but is not guaranteed.
© 2017 San Antonio Board of Realtors. All rights reserved.


,,