704 Norris

Killeen, TX 76541

704 Norris

Killeen, TX 76541

$334,900

10
  • Spofford Add
  • MLS: #598217
5 months, 8 days, 6 hours, 12 minutes on market
StatusActive
Year Built2025
CountyBell
Flooring
Lot Size0.1378
ParkingAttached, Garage
Total Stories
CoolingCentralAir, Electric, TwoUnits
School District Killeen ISD
Schools Killeen High School, Nolan Middle School, West Ward Elementary School
FireplaceNone
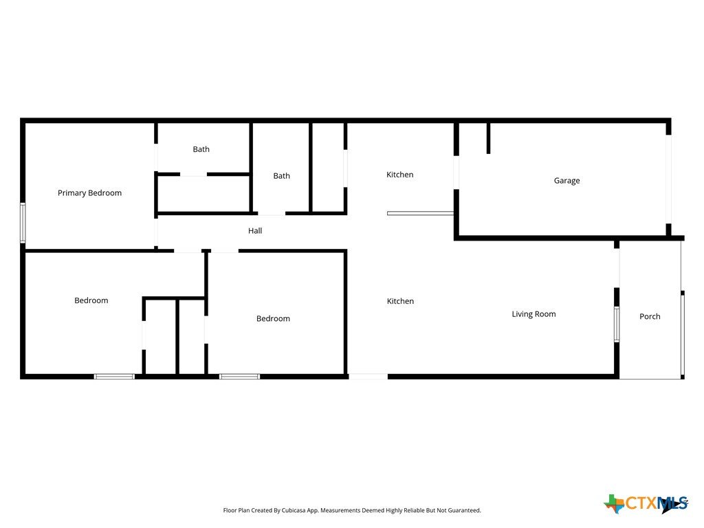
Property Type Duplex

Property Details

SELLER WILL PAY BUYERS CLOSING COSTS! Don’t miss your chance to own this brand-new duplex in Killeen! Located at 704 Norris Dr, just minutes from Fort Cavazos (Fort Hood), major shopping, dining, schools, hospitals, and quick access to WS Young Dr, Rancier Ave, and I-14, this location is ideal for both residents and investors. This newly constructed duplex offers 3 bedrooms and 2 full bathrooms on each side—a total of 6 bedrooms and 4 bathrooms. The home is currently under construction and scheduled for completion at the end of April, 2026 Upon completion, each unit will feature: • New carpet in all bedrooms • New luxury vinyl plank flooring throughout the main living areas • Laminate countertops • Stainless steel appliances • Brand-new interior finishes throughout This is a perfect opportunity to secure a fresh, move-in-ready duplex near the military base—ideal for owner-occupants, long-term rentals, or short-term investment strategies.




Courtesy of Two Lakes Real Estate

This real estate information comes in part from the Internet Data Exchange/Broker Reciprocity Program . Information is deemed reliable but is not guaranteed.
© 2017 San Antonio Board of Realtors. All rights reserved.


,,