635 Lubbock

New Braunfels, TX 78132

635 Lubbock

New Braunfels, TX 78132

$275,000

10
5 months, 8 days, 23 hours, 51 minutes on market
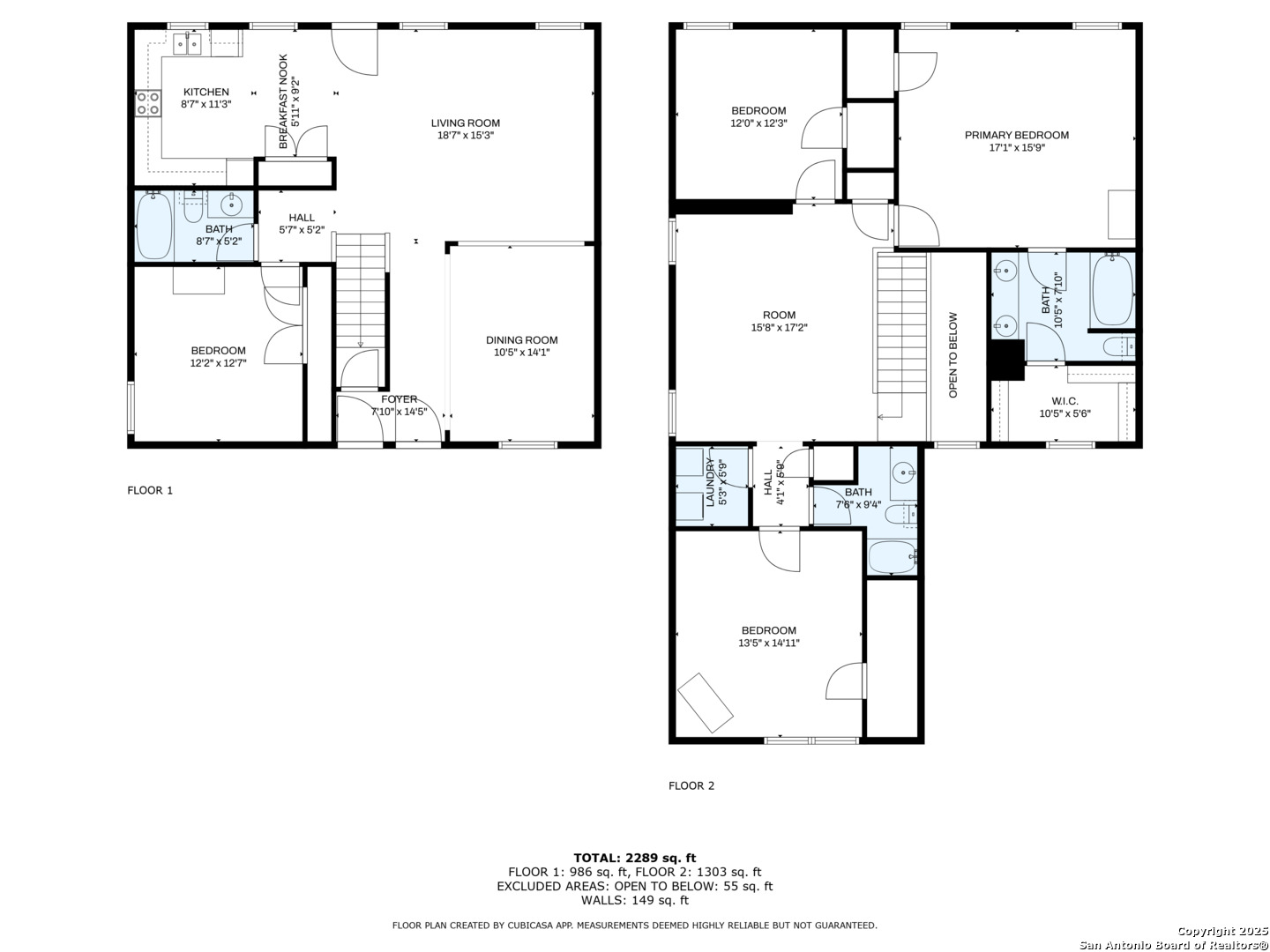
4 3 2350
Beds Baths Sq. Ft.
StatusActive
Year Built2006
CountyComal
FlooringCarpeting, Ceramic Tile, Linoleum
Lot Size0.309
ParkingTwo Car Garage
Total Stories2
CoolingOne Central
School District Comal
Schools Davenport, Danville Middle School, Morningside
FireplaceNot Applicable
Property Type Single Family Detached
635 Lubbock New Braunfels TX 78132

Property Details

Ready to move up? See It to Believe It! Opportunity is knocking on this front door and just in time for back to school! Affordable with one of the lowest prices per square foot in the area - Here's your established, New Braunfels 4 bedroom, on Cul-de-Sac with a HUMONGOUS backyard for you to place a swimming pool, toss a ball, or simply create your own relaxing oasis. Recently painted inside and out. A guest bedroom and bath downstairs with an open floorplan to dine and entertain - offering tons of flexibility, and a generous loft/family room upstairs. Amazing park and playground nearby - Easy access for your path to Downtown New Braunfels, Gruene, San Marcos, Austin or JBSA Randolph. Let's make your dream a reality!




Courtesy of Keller Williams Legacy

This real estate information comes in part from the Internet Data Exchange/Broker Reciprocity Program . Information is deemed reliable but is not guaranteed.
© 2017 San Antonio Board of Realtors. All rights reserved.


,,