564 -- Muncey Ridge Dr

Fredericksburg, TX 78624

564 -- Muncey Ridge Dr

Fredericksburg, TX 78624

$1,975,000

10
2025-12-27
StatusActive
Year Built---
CountyGillespie
FlooringCTEC Electric Available
Lot Size
ParkingOther-See Remarks
Total StoriesResidential,Recreational,Investment
Cooling
School District
Schools
Fireplace
Property Type

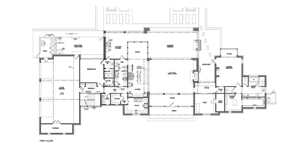
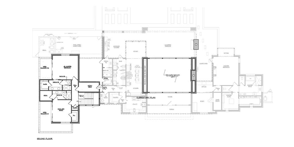
Property Details

This incredible homesite is located close to the main gate and still offers easy access to all the amenities within the club. Just a quick shuttle cart ride to the Racquet Club, the Ranch Club, Metzger Park and the Clubhouse Village. The plans and renderings that are displayed have been designed for this lot by Pollard Hodgson Architects and have been preliminarily approved by the Architectural Review Board. The buyer would work with Pollard Hodgson Architects to finish design and complete the ARB process at a cost. There is no time limit on building. Purchase price includes architectural plans as well as a multi-generational Boot Ranch membership. Don't miss your opportunity to become part of Boot Ranch, the finest private club community in Texas.




This real estate information comes in part from the Internet Data Exchange/Broker Reciprocity Program . Information is deemed reliable but is not guaranteed.
© 2017 San Antonio Board of Realtors. All rights reserved.


,,