4400 W Highway 290

Dripping Springs, TX 78620

4400 W Highway 290

Dripping Springs, TX 78620

$1,470,000

10
16 days, 4 hours, 21 minutes on market
StatusNew
Year Built---
CountyHays
Flooring
Lot Size4
Parking
Total Stories
Cooling
School District
Schools
Fireplace
Property Type Commercial Land

Property Details

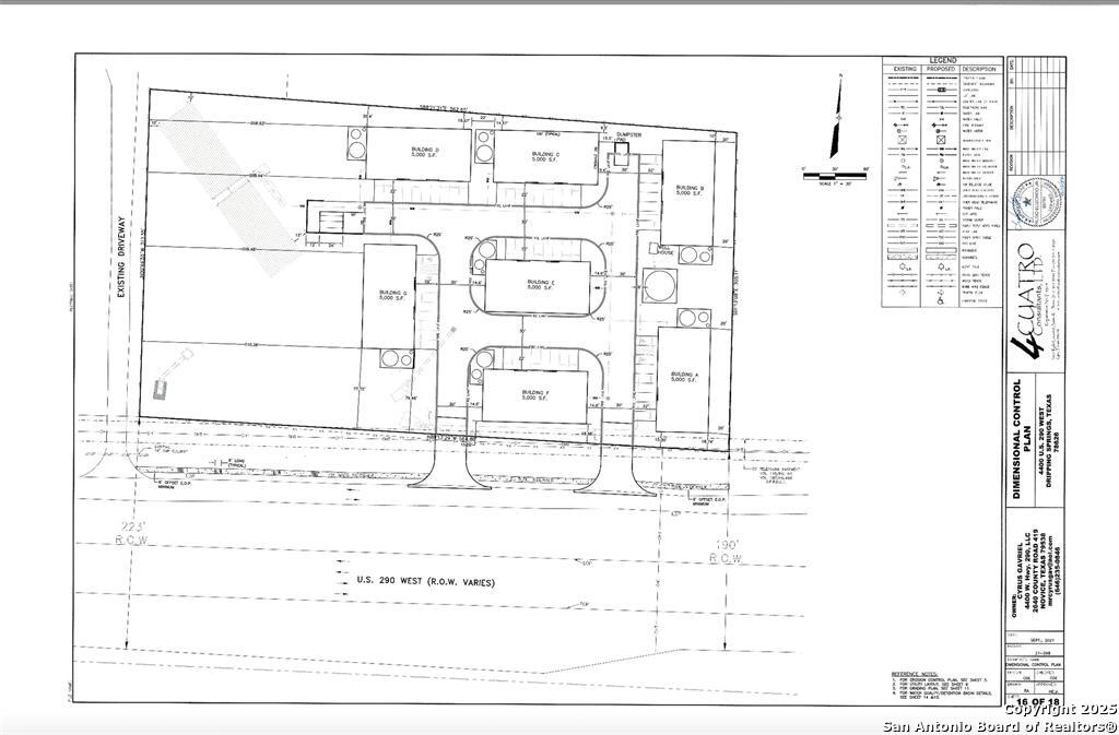
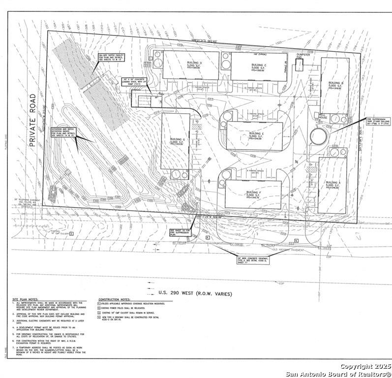
URIAH Real Estate Organization has been exclusively retained to market and sell a prime 4 +/- acre commercial land parcel located along the highly visible and accessible U.S. Highway 290 corridor. This area has experienced significant growth over the past decade, making it an ideal location for commercial development. The property comes with approved and permitted plans to construct over 35,000 square feet of warehouse/office space. This development can be tailored for triple net leasing or individual building sales, offering immediate project commencement opportunities. With approximately 580 feet of frontage along Highway 290, the property boasts excellent visibility and accessibility, enhancing its appeal for commercial enterprises. Essential utilities, including electricity, water, and cable, are available on-site, facilitating a seamless development process. Situated in Dripping Springs, the property benefits from convenient access to major highways connecting to Austin and San Antonio, positioning it strategically for regional business operations.




Courtesy of Uriah Real Estate Organization

This real estate information comes in part from the Internet Data Exchange/Broker Reciprocity Program . Information is deemed reliable but is not guaranteed.
© 2017 San Antonio Board of Realtors. All rights reserved.


,,