3502 Elm

Temple, TX 76502

3502 Elm

Temple, TX 76502

$329,900

10
  • Lastovica Square
  • MLS: #612211
1 day, 8 hours, 18 minutes on market
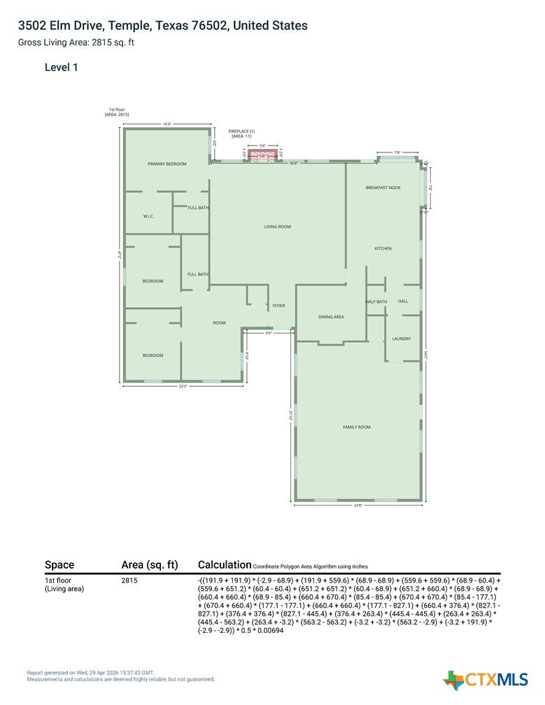
3 3 2815
Beds Baths Sq. Ft.
StatusActive
Year Built1986
CountyBell
Flooring
Lot Size0.3064
Parking
Total Stories
CoolingCentralAir, Electric
School District Temple ISD
Schools Temple High School, Bonham Middle School, Thornton Elementary
FireplaceLivingRoom, WoodBurning
Property Type SingleFamilyResidence

Property Details

Spacious single-story home in an established South Temple neighborhood shaded by mature trees and offering 2,815 sq ft of flexible living space. This 3 bedroom, 2.5 bath brick home features a desirable layout with multiple living and dining areas designed for everyday comfort and entertaining. The huge living room showcases vaulted ceilings, rich wood-look flooring, and a wood-burning brick fireplace that creates a warm focal point. A separate oversized family room provides excellent space for media, game room, hobbies, or multigenerational living. The large kitchen offers abundant cabinet storage, center island with built-in cooktop, built-in desk area, extensive counter space, and a sunny breakfast nook. Formal dining room is ideal for holidays and gatherings. Just off the foyer, a spacious open room makes an excellent home office, library, playroom, or flex space. The generous primary suite includes private bath access, while secondary bedrooms are comfortably sized with great closet space. Half bath adds convenience for guests. Step outside to a covered back patio overlooking the fenced backyard with towering shade trees, open lawn space, and storage shed. Ample parking in front driveway and side street driveway. Located in one of Temple’s most established areas, this home is less than 3 miles to Baylor Scott & White Hospital, less than 4 miles to the VA Hospital and Temple College, and less than 2 miles to major shopping, dining, and daily conveniences. Easy access to local employers, medical corridor, and commuter routes. If you are searching for a large one-story home in Temple TX with mature trees, multiple living areas, and room to make it your own, this property is a must see.




Courtesy of Keller Williams Lone Star Realty

This real estate information comes in part from the Internet Data Exchange/Broker Reciprocity Program . Information is deemed reliable but is not guaranteed.
© 2017 San Antonio Board of Realtors. All rights reserved.


,,