302 Bank

San Antonio, TX 78204

302 Bank

San Antonio, TX 78204

$425,000

10
  • S Durango Probandt
  • MLS: #1876474
6 months, 1 hour, 41 minutes on market
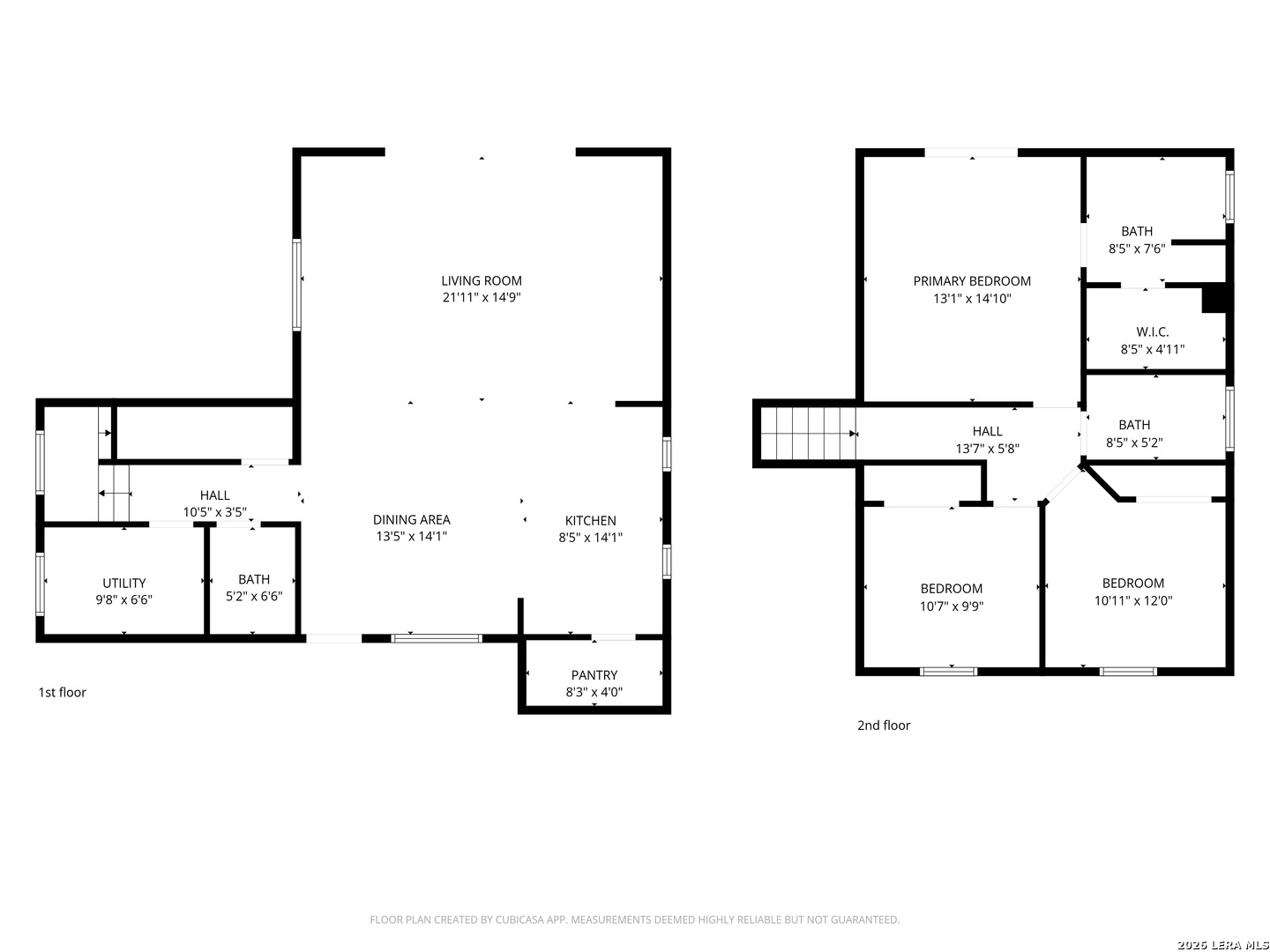
3 3 1671
Beds Baths Sq. Ft.
StatusActive
Year Built2024
CountyBexar
FlooringCarpeting, Ceramic Tile, Laminate
Lot Size0.161
ParkingOne Car Garage
Total Stories2
CoolingOne Central
School District San Antonio I.S.D.
Schools Call District, Call District, Call District
FireplaceNot Applicable
Property Type Single Family Detached
302 Bank San Antonio TX 78204

Property Details

Ready for move in- A must see! Up to 1% buy down available. This is a beautiful new custom designed and custom-built house, a two-story single-family home located in the Lone Star district, offering modern amenities and located near downtown San Antonio. It has 1,671 sq. ft. of living space on a 0.16-acre lot. The property has three bedrooms and two and a half baths as well as a professionally finished large one car garage. The light open floor plan features a combined living, dining and kitchen area, showcased with bright Shaker-style cabinetry and steel grade countertops making it perfect for entertaining and creating lasting memories. The primary suite boasts a spacious walk-in closet, full bathroom and inviting balcony, ideal for enjoying a morning coffee or relaxing in the evening. The house has carpet and vinyl flooring throughout and promises comfort with electric central air heating and conditioning. The large backyard is great for get togethers or just unwinding after a long day.




Courtesy of Ih 10 Realty

This real estate information comes in part from the Internet Data Exchange/Broker Reciprocity Program . Information is deemed reliable but is not guaranteed.
© 2017 San Antonio Board of Realtors. All rights reserved.


,,