275 West

Pleasanton, TX 78064

275 West

Pleasanton, TX 78064

$2,000

10
  • Country Trails
  • MLS: #1956218
16 days, 14 hours, 43 minutes on market
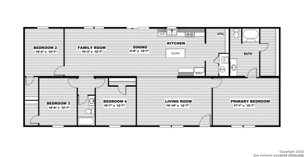
4 2 1768
Beds Baths Sq. Ft.
StatusActive
Year Built2019
CountyAtascosa
Flooring
Lot Size2.5
ParkingNone/Not Applicable
Total Stories
CoolingOne Central
School District Pleasanton
Schools Pleasanton, Pleasanton, Pleasanton
FireplaceNot Applicable
Property Type Manufactured

Property Details

Escape to this ideal Quiet country living home Nestled on almost 3 acres (2.5 acers) providing both privacy and space for all your lifestyle needs. Cleared and level and fenced, ready for your dream custom life in your new home. Enjoy paved road frontage and to convenient access to two major highways (IH-37 and Hwy 97), facilitating a convenient commute to Pleasanton 5M, Floresville 20M, or San Antonio 35M. The lot is approximately 325 feet wide and 360 feet deep, Paved roads and entry to subdivision adding character and curb appeal to the exterior. Home offers roomy open floor plan with split bedroom design. This charming home combines elegance and comfort with thoughtful design. Inside, you'll find beautiful real wood cabinets and detailed crown molding throughout, creating a cohesive and timeless look in every room. The spacious kitchen is a standout feature, complete with a large pantry, Island kitchen that provides ample space for cooking, meal prep, and entertaining. An Office for those who like to work from home. Utility inside. Step outside to enjoy the inviting front porch deck, perfect for morning coffee or greeting guests, or family, ideal for relaxing or hosting gatherings while overlooking the peaceful surroundings. Storage/workshop building, pole barn/a shed plus a carport. Property is fenced Therefor home is further enhanced by adding your pets in this new home like up to 2 horses. This property offers the perfect combination of indoor elegance and outdoor tranquility, Set your appointment today.




Courtesy of 3sixty Real Estate Group

This real estate information comes in part from the Internet Data Exchange/Broker Reciprocity Program . Information is deemed reliable but is not guaranteed.
© 2017 San Antonio Board of Realtors. All rights reserved.


,,