1804 Stonechat

New Braunfels, TX 78130

1804 Stonechat

New Braunfels, TX 78130

$240,000

10
1 month, 15 days, 19 hours, 13 minutes on market
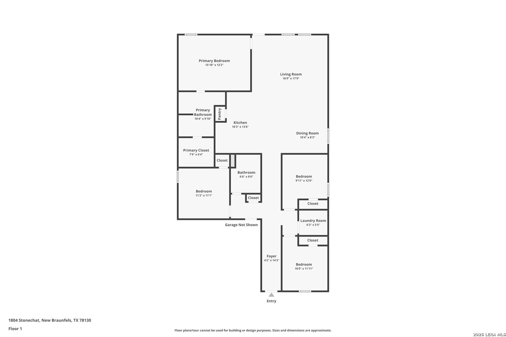
4 2 1667
Beds Baths Sq. Ft.
StatusActive
Year Built2025
CountyGuadalupe
FlooringCarpeting, Vinyl
Lot Size0.11
ParkingNone/Not Applicable
Total Stories1
CoolingOne Central
School District New Braunfels
Schools New Braunfel, New Braunfel, Voss Farms
FireplaceNot Applicable
Property Type Single Family Detached
1804 Stonechat New Braunfels TX 78130

Property Details

The Ramsey- This new single-story design makes smart use of the space available. At the front are all three secondary bedrooms arranged near a convenient full-sized bathroom. Down the foyer is a modern layout connecting a peninsula-style kitchen made for inspired meals, an intimate dining area and a family room ideal for gatherings. Tucked in a quiet corner is the owner's suite with an attached bathroom and walk-in closet. *Seller is willing to assist with closing costs or a rate buy-down through preferred lender with an acceptable offer.




Courtesy of Marti Realty Group

This real estate information comes in part from the Internet Data Exchange/Broker Reciprocity Program . Information is deemed reliable but is not guaranteed.
© 2017 San Antonio Board of Realtors. All rights reserved.


,,