1804 Gigante

Killeen, TX 76543

1804 Gigante

Killeen, TX 76543

$278,425

10
  • Lakeview Park Sub
  • MLS: #601295
1 month, 24 days, 19 hours, 5 minutes on market
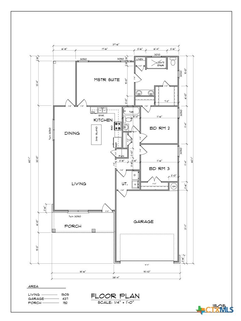
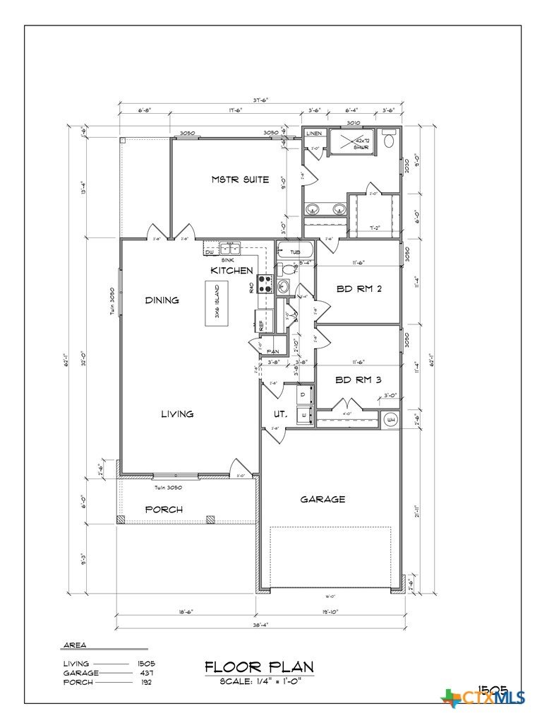
3 2 1505
Beds Baths Sq. Ft.
StatusActive
Year Built2026
CountyBell
Flooring
Lot Size0.1392
Parking
Total Stories
CoolingOneUnit
School District Killeen ISD
Schools
FireplaceNone
Property Type SingleFamilyResidence

Property Details

Welcome to The Pathfinder – 1505 Sq Ft of Purpose-Driven Design Crafted by Summit Valor Homes, The Pathfinder leads with intention. This 3-bedroom, 2-bath home features an open-concept living and dining space, a spacious kitchen with island seating, and a private master suite that offers the perfect retreat. With a split floor plan, dedicated utility room, and two-car garage, The Pathfinder delivers modern comfort wrapped in timeless Texas strength. Built with honor. Crafted for life.




Courtesy of Keller Williams Realty Nw

This real estate information comes in part from the Internet Data Exchange/Broker Reciprocity Program . Information is deemed reliable but is not guaranteed.
© 2017 San Antonio Board of Realtors. All rights reserved.


,,