17340 Fm 1123

Holland, TX 76534

17340 Fm 1123

Holland, TX 76534

$421,760

10
3 months, 19 days, 10 hours, 49 minutes on market
StatusActive
Year Built---
CountyBell
Flooring
Lot Size13.18
Parking
Total Stories
Cooling
School District Holland ISD
Schools Holland High School, Holland Middle School, Holland Elementary School
Fireplace
Property Type Acreage

Property Details

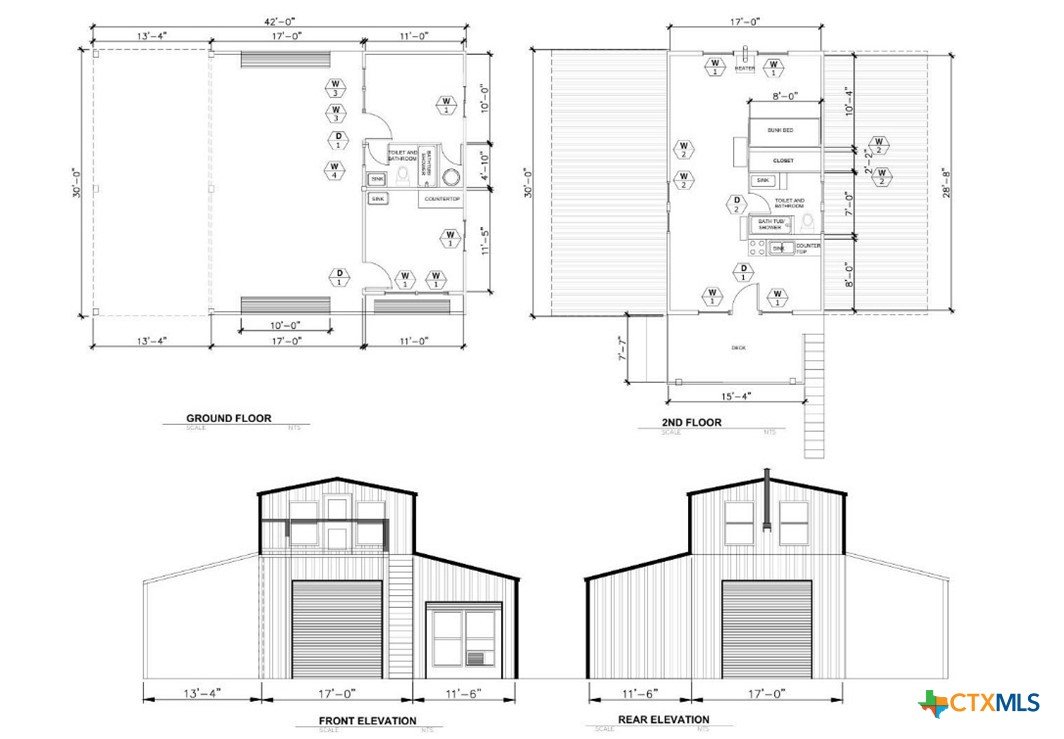
This property spans 13.18 acres, inviting you the charm of Holland, Texas. Beautiful views, 2 story barn 1260 square feet, additional 500 sq ft of living quarters with 2 bed, 2 bath, and kitchen, nestled in Bell County's picturesque countryside. Situated 2 miles from Holland, Salado 11 miles, 17 miles from Temple, 32 miles from Georgetown, 34 miles from Killeen, 51 miles from Waco and 59 miles from Austin. Close to Holland's quaint town center, this property provides easy access to local shops and services. Electricity and water is installed and available at the barn. A septic tank is already in place to service the barn’s living quarters. 296 ft county road frontage. The property's Ag Exempt status makes it ideal for those seeking a lifestyle connected to the land, while keeping your tax burden light. Light restrictions allow for most uses while protecting the overall aesthetics and property value. No manufactured or Modular.




Courtesy of Vertical Integration Realty

This real estate information comes in part from the Internet Data Exchange/Broker Reciprocity Program . Information is deemed reliable but is not guaranteed.
© 2017 San Antonio Board of Realtors. All rights reserved.


,,