1639 Lost Nook

New Braunfels, TX 78130

1639 Lost Nook

New Braunfels, TX 78130

$366,400

10
  • Meadows At Clear Springs
  • MLS: #1932269
1 day, 5 hours, 8 minutes on market
3 2 1687
Beds Baths Sq. Ft.
StatusNew
Year Built2025
CountyComal
FlooringCarpeting, Vinyl
Lot Size0.15
ParkingTwo Car Garage
Total Stories1
CoolingOne Central
School District Comal
Schools Canyon, Canyon, Clear Spring
FireplaceNot Applicable
Property Type Single Family Detached
1639 Lost Nook New Braunfels TX 78130

Property Details

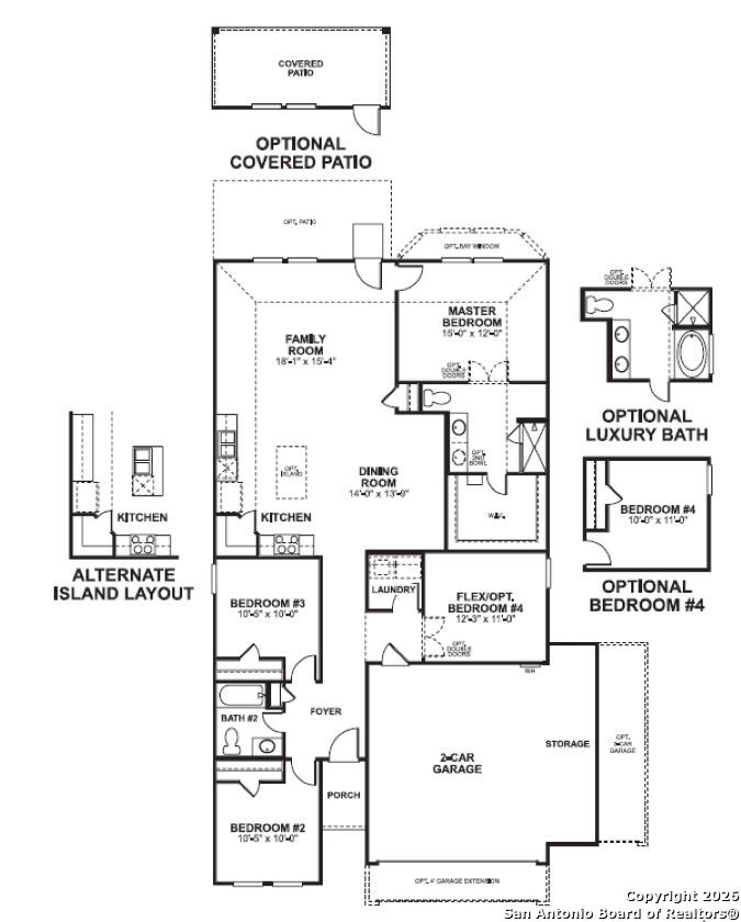
***ESTIMATED COMPLETION DATE: APRIL 2026***Welcome home to the Freestone, a 1-story floorplan that features 1,687 square feet, 3 bedroomS, 2 bathrooms, and a 2-car garage. As you enter this home, you are greeted by a spacious foyer that gives direct access to your secondary bedrooms and full bathroom on one side and your laundry room with a flex space on the other side. The flex space can be upgraded to a 4th bedroom or it can remain as an open space. Opportunities are endless when left as an open space. You are free to transform it into a home office, a play room for the kids, or an additional living room. In the main living area of the home you'll find the family room, kitchen, and dining room. The kitchen offers an optional center island that overlooks the open-concept living space. This home features soaring ceilings throughout and large windows to allow the natural light to shine through. The owner's suite is nestled at the back of the home and offers a spacious bedroom and large private bathroom with a generously sized walk-in closet. Options come galore in this owner's suite! Add a bay window to the bedroom for extra space, upgrade to the deluxe bathroom layout for a separate garden tub/shower set up, or add a second sink to the vanity. All M/I Homes' Smart Series plans offer professionally pre-designed packages, allowing you to make this space your own by simply selecting the package that suits you best. You will love the stylish design and value that comes with your new Smart Series M/I Home.




Courtesy of Escape Realty

This real estate information comes in part from the Internet Data Exchange/Broker Reciprocity Program . Information is deemed reliable but is not guaranteed.
© 2017 San Antonio Board of Realtors. All rights reserved.


,,