13610 Guajillo Spring

San Antonio, TX 78253

13610 Guajillo Spring

San Antonio, TX 78253

$338,530

10
  • Winding Brook
  • MLS: #1953940
1 day, 1 hour, 25 minutes on market
3 3 1782
Beds Baths Sq. Ft.
StatusNew
Year Built2026
CountyBexar
FlooringCarpeting, Ceramic Tile, Vinyl
Lot Size0.13
ParkingTwo Car Garage
Total Stories2
CoolingOne Central
School District Northside
Schools Sotomayor High School, Straus, Katie Reed
FireplaceNot Applicable
Property Type Single Family Detached
13610 Guajillo Spring San Antonio TX 78253

Property Details

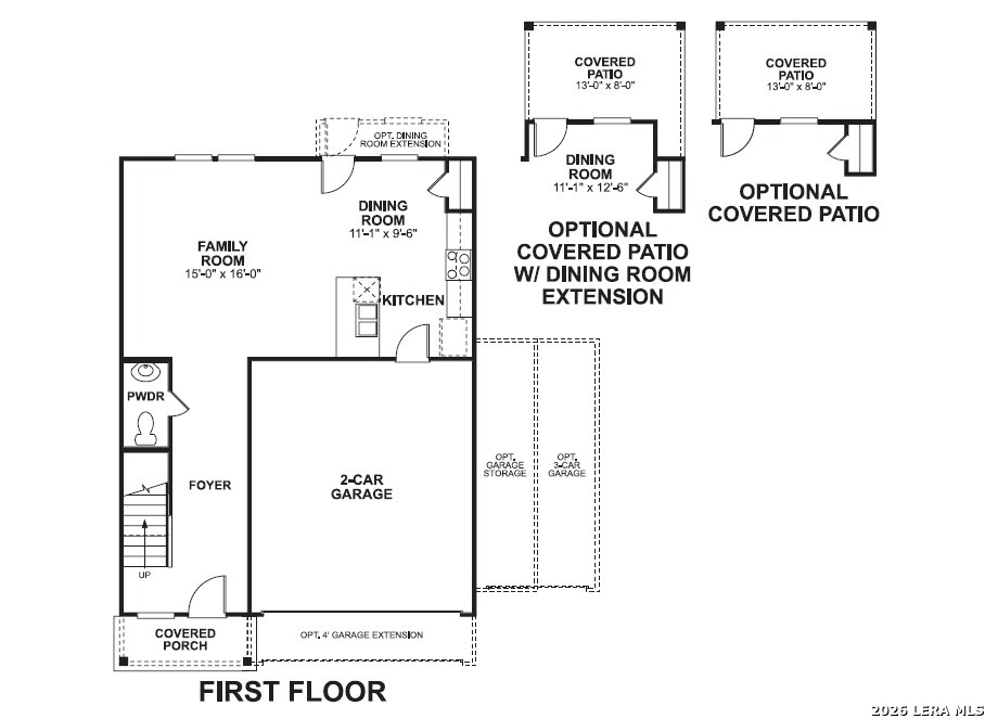
**ESTIMATED COMPLETION DATE: JULY 2026**The Wisteria is a two-story home that boasts 1,782 square feet of functional living space, and features 3 bedrooms, 2.5 bathrooms, and a 2-car garage. This open-concept Smart Series design is built with your lifestyle in mind! Enter through the covered porch to be drawn into the wide and bright foyer where you can conveniently head upstairs after a long day of work to unwind, or, visit with family in the family room. Immediately off the entry is a conveniently placed powder bathroom. Adjoined to the family room, the kitchen and dining space allow for open seating at breakfast or dinner. The kitchen, surrounded by granite countertops, a walk-in pantry, and spacious upper and lower cabinets, also offers an optional dining room extension to invite more guests to the table. This home provides owners with a choice to entertain or enjoy the outdoors with an optional covered patio situated off the dining space. Upstairs, you'll be greeted by a large, open play area or loft space with a laundry room tucked behind it. The spacious owner's suite is situated at the back of the home. This bedroom features beautiful natural light and an optional extended bay window for maximum space. Optional double doors lead directly into your owner's bath retreat, complete with an oversized walk-in shower and a large walk-in closet. Desirable add-ons include a double bowl vanity, separate toilet room, and a garden-style soaking tub. Two additional bedrooms are also located upstairs, each with walk-in closets and a conveniently located shared bath.




Courtesy of Escape Realty

This real estate information comes in part from the Internet Data Exchange/Broker Reciprocity Program . Information is deemed reliable but is not guaranteed.
© 2017 San Antonio Board of Realtors. All rights reserved.


,,