12507 Ponder Ranch

San Antonio, TX 78245
Off Market

12507 Ponder Ranch

San Antonio, TX 78245

Contact For Sold Price
4 3 2642
Beds Baths Sq. Ft.
StatusOff Market
Year Built2014
CountyBexar
FlooringCarpeting, Ceramic Tile
Lot Size0.16
ParkingTwo Car Garage
Total Stories2
CoolingOne Central
School District northside
Schools William Brennan, Luna, Edmund Lieck
FireplaceNot Applicable
Property Type single family detached

Property Details

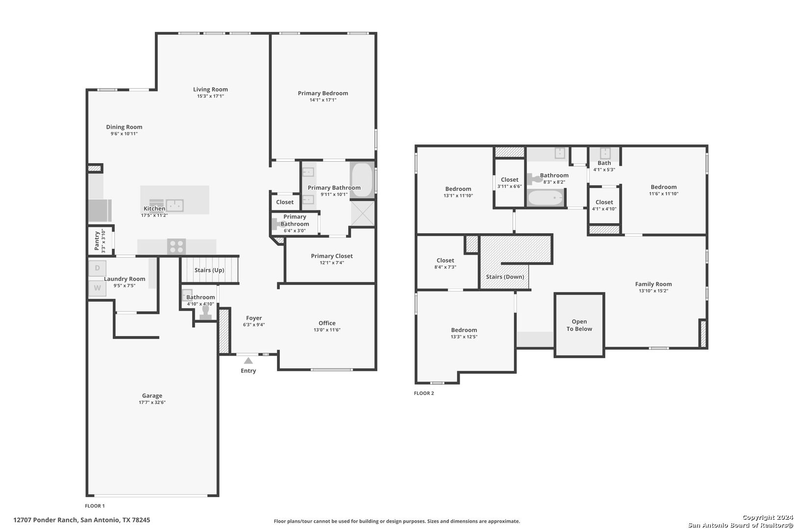
Win this deal with an assumable 3.25% loan available and save thousands! Or optional rate buydown! Discover your new home in the sought-after Weston Oaks community comes with a new Roof, Flex Space, and solar panels included. This stunning residence combines comfort and luxury, offering modern elegance with unique character. Perfect for gatherings, the open layout flows seamlessly from the great room to the dining area and kitchen, featuring a large center island ideal for culinary enthusiasts and entertainers. Located on the main floor, the luxurious primary suite includes a private bath with a walk-in shower combo, a linen closet, and a large walk-in closet. Ascend the stairs to an expansive and multifunctional loft area, surrounded by three generously sized bedrooms and a full hall bath. Modern upgrades throughout include granite countertops and 11-foot ceilings. The chef's kitchen features a fabulous 9-foot granite island with a center sink, stainless steel appliances, a breakfast bar with a separate eating area, a walk-in pantry, LED recessed lighting, and upgraded 42" mocha cabinets with crown molding. Additional main floor amenities include a separate dining room/office, a very spacious family room with 11-foot ceilings, and a huge primary bedroom with a tray ceiling, a full bath with a separate garden tub, double vanity granite counters, and a generous walk-in shower. A convenient utility room leads to a garage with ample ceiling space for additional storage. Upstairs, a spacious game/family room with a built-in workstation is surrounded by three large bedrooms. Enjoy outdoor living with a covered patio and a spacious private backyard featuring new sod. Recent home updates include a durable 30-year architectural roof, solar panels to lower energy bills, and a water softener system. This large, move-in ready, well-built 4-bedroom home is packed with upgrades and extra features. Don't miss out on this exceptional home.




Courtesy of Lpt Realty, Llc

This real estate information comes in part from the Internet Data Exchange/Broker Reciprocity Program . Information is deemed reliable but is not guaranteed.
© 2017 San Antonio Board of Realtors. All rights reserved.


,,