12227 Huebner Rd

San Antonio, TX 78230
Off Market

12227 Huebner Rd

San Antonio, TX 78230

Contact For Sold Price
N/A N/A 1410
Beds Baths Sq. Ft.
StatusSold
Year Built2007
CountyBexar
Flooring
Lot Size
Parking
Total Stories
CoolingCentral
School District Northside
Schools
Fireplace

Property Details

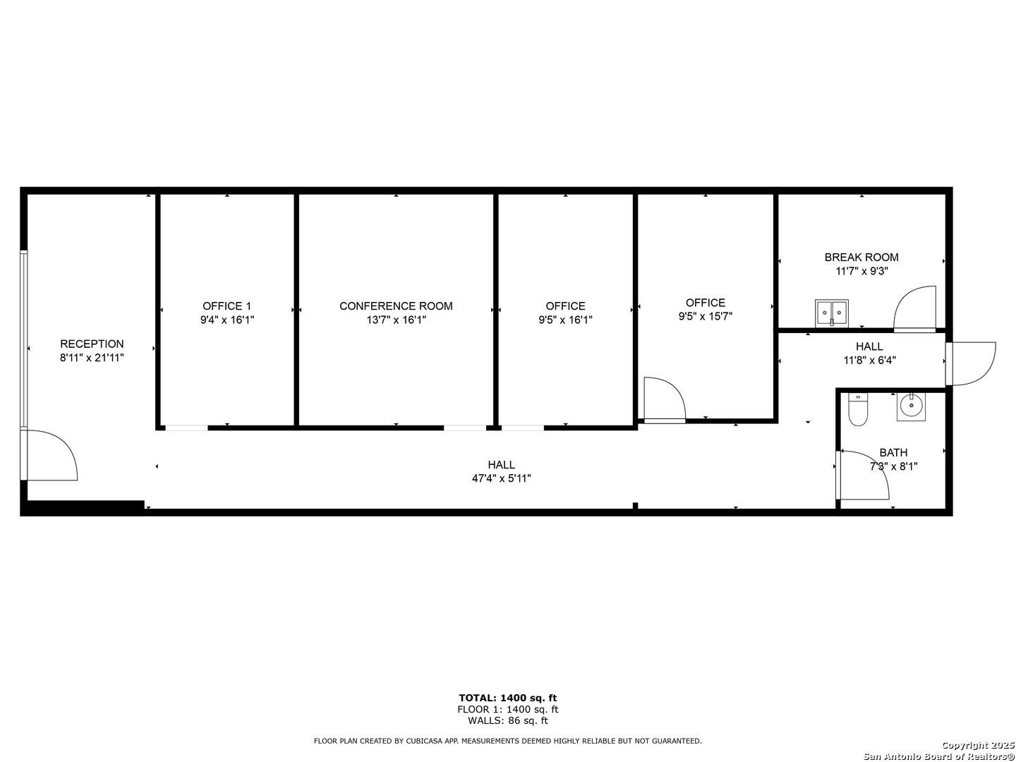
Newly constructed and ready for occupancy by the end of August, this professional one-story office suite combines functionality with visibility. The contemporary glass storefront is complemented by prominent monument signage, ensuring your business stands out. Inside, the layout features a welcoming reception area, four spacious offices with soaring ceilings, a dedicated conference room, a single restroom, and a storage/break room for added convenience. Zoned C-2, this versatile space is well-suited for a variety of uses, including real estate offices, CPAs, insurance agencies, administrative firms, and law practices. It also accommodates medical professionals such as therapists, chiropractors, massage therapists, acupuncturists, dentist, doctor, and other specialties. Cabinets and sink base in break room.




Courtesy of Keller Williams Heritage

This real estate information comes in part from the Internet Data Exchange/Broker Reciprocity Program. Information is deemed reliable but is not guaranteed.
© 2017 San Antonio Board of Realtors. All rights reserved.


,,