1123 Stone Valley

Temple, TX 76502
Sold

1123 Stone Valley

Temple, TX 76502

Contact For Sold Price
N/A N/A 2738
Beds Baths Sq. Ft.
StatusSold
Year Built2025
CountyBell
Flooring
Lot Size0.2
ParkingAttached, Garage
Total Stories
CoolingCentralAir
School District Belton ISD
Schools Lake Belton High School, North Belton Middle School, Tarver Elementary
FireplaceNone

Property Details

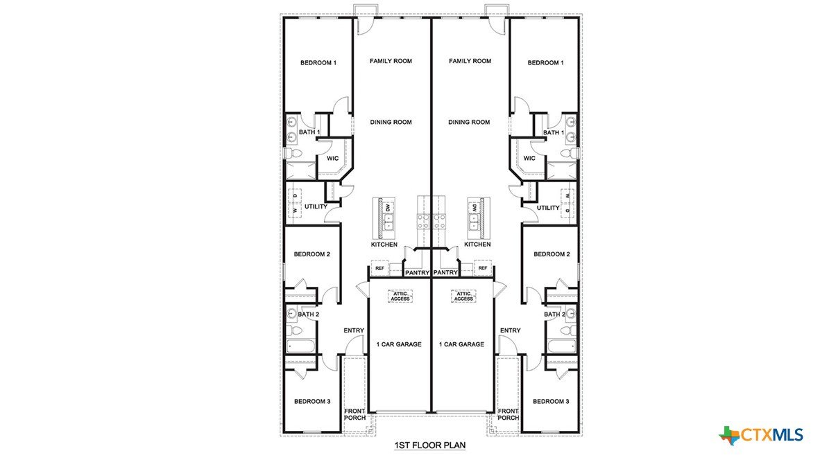
The 1402 Multi-Family Duplex floorplan at The Terrace Duplexes in Temple, Texas is a 3-bedroom, 2-bathroom single-story home covering approximately 1,369 sq. ft. The single-car garage ensures plenty of space for your vehicle and storage. In this floorplan, you’ll find a home that makes the most of its space. The kitchen features beautiful flat panel birch cabinetry with granite countertops and its corner pantry, as it flows into the dining area and family room. The bedrooms are carpeted, and the primary bedroom has an attached bathroom with a walk-in closet. The secondary bedrooms are cozy and carpeted, with plenty of closet space. The laundry room is perfectly place in the center of the house between the primary and secondary bedrooms for easy access. Enjoy nature from the backyard covered patio that is accessible from the family room. Here you can start or end your day relaxing with nature. Like with all our homes, you’ll never be too far from home with our smart home technology thoughtfully designed into every detail. Find security and control through the Qolsys panel, your phone, or voice and when you want to add additional smart home tech, easily integrate with Z-wave or Bluetooth technology. Come visit the Multi-Family Duplex floorplan today to find your new home!




Courtesy of Nexthome Tropicana Realty

This real estate information comes in part from the Internet Data Exchange/Broker Reciprocity Program. Information is deemed reliable but is not guaranteed.
© 2017 San Antonio Board of Realtors. All rights reserved.


,,