11135 Schmidt Lane

Converse, TX 78109

11135 Schmidt Lane

Converse, TX 78109

$369,416

10
  • Katzer Ranch
  • MLS: #1940986
1 month, 21 days, 12 hours, 42 minutes on market
4 3 2084
Beds Baths Sq. Ft.
StatusActive
Year Built2026
CountyBexar
FlooringCarpeting, Vinyl
Lot Size0.11
ParkingTwo Car Garage
Total Stories2
CoolingOne Central
School District East Central I.S.D
Schools East Central, Heritage, Honor
FireplaceNot Applicable
Property Type Single Family Detached
11135 Schmidt Lane Converse TX 78109

Property Details

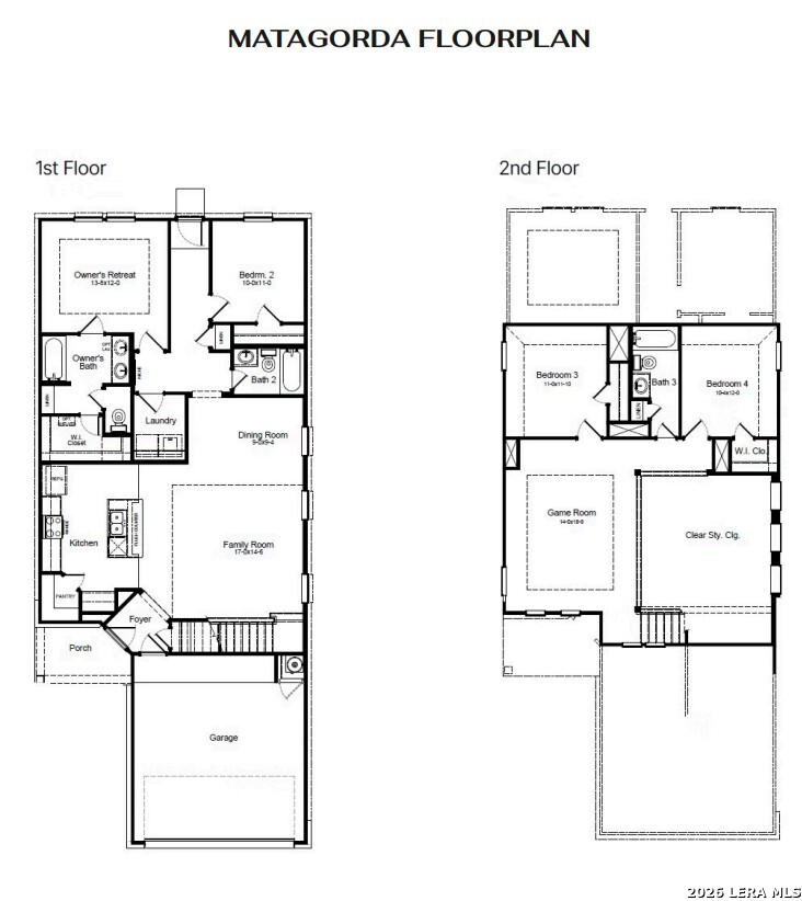
The Matagorda is a four-bedroom, three-bath floorplan that offers 2,084 square feet. The large living area with soaring ceilings offering plenty of room for relaxation and entertaining. The owner's retreat is a private sanctuary, featuring a spacious bathroom and a generous walk-in closet. A second bedroom downstairs offers flexibility as a nursery, study or guest space, while an upstairs gameroom provides an additional space to enjoy.




Courtesy of The Signorelli Company

This real estate information comes in part from the Internet Data Exchange/Broker Reciprocity Program . Information is deemed reliable but is not guaranteed.
© 2017 San Antonio Board of Realtors. All rights reserved.


,,